Architectuur: Architecten Achtergael
Opdrachtgever: Patrimbeheer
Ontwerp & uitvoering: 2017 – 2020
Fotografie: Dennis De Smet
In de oksel van een belangrijke Gentse uitvalsweg en de spoorlijn Gent-Brussel, bevindt zich sinds kort een opvallend kantoorgebouw voor de bouwonderneming Wyckaert. Gezien de zeer zichtbare locatie werd een architectuurwedstrijd (op uitnodiging) georganiseerd, waarbij Architecten Achtergael uiteindelijk het winnend ontwerp mochten realiseren.
Het ontwerp behelst de bouw van een kantoorgebouw met een bijhorende loods. Om de identiteit van het bouwbedrijf op deze locatie te versterken, werd er voor gekozen om het kantoorgebouw en de loods niet als afzonderlijke entiteiten te ontwerpen. De architecten besloten deze te bundelen in één omhullende enveloppe. Deze functioneert tevens als opvallend uithangbord, mede dankzij de keuze voor een golvend groene keramische gevel.

De keramische tegels zijn ontworpen in twee formaten met een verschillend golvend reliëf in een groene kleur. Deze kleur verwijst naar het bedrijfslogo van de bouwonderneming. Door de golving en de afwisseling tussen de formaten ontstaat een breking van het licht. Het effect is dat het gebouw er op een zonnige of bewolkte dag volledig anders uitziet.

Binnen die enveloppe wordt het kantoorgebouw van de loods gescheiden door een binnentuin die zorgt voor licht, lucht en ruimte. Hierdoor krijgt het kantoorgebouw een groenruimte die voldoende privacy en rust kan garanderen, rekening houdend met de ligging langs de drukke autosnelweg.

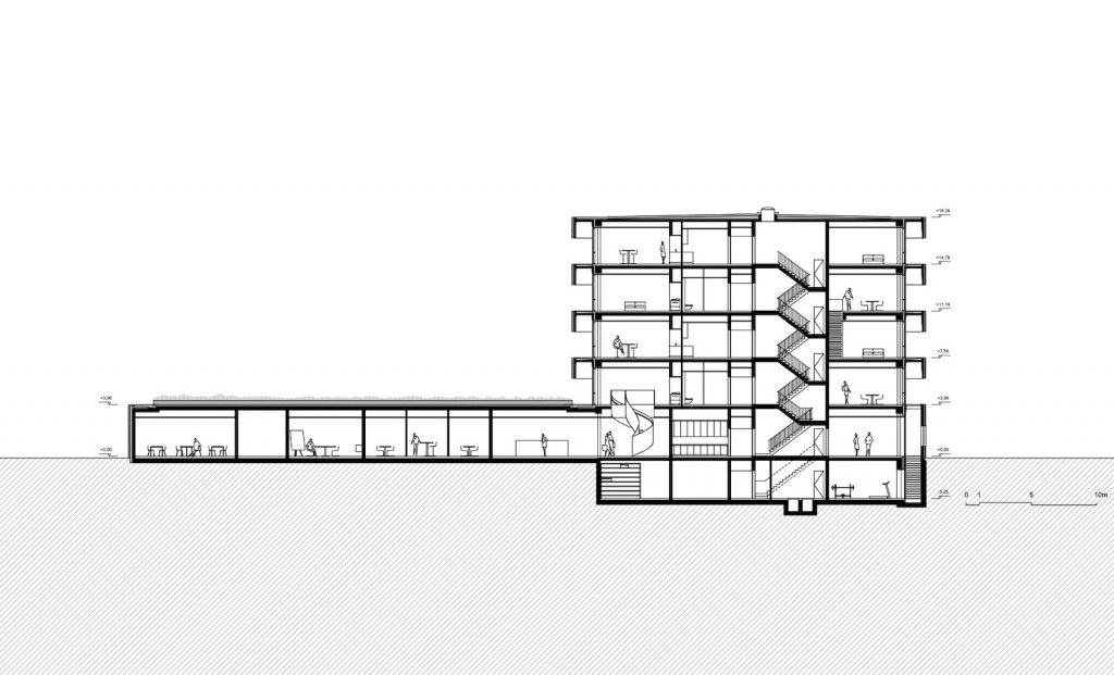
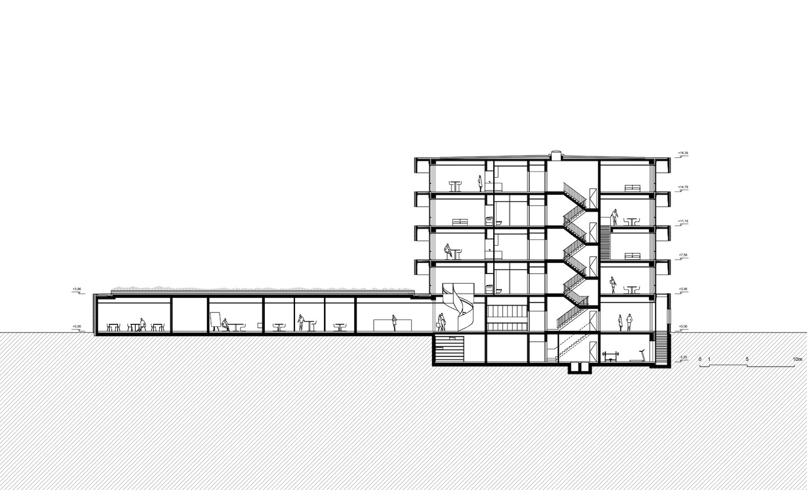
Het kantoorgebouw is vrij eenvoudig opgebouwd. De plint omvat de ontvangstruimte, vergaderzalen, eetzaal en enkele kantoren. Daarboven zijn de kantoren gestapeld in vier quasi gelijke verdiepingen. Deze geven een verticaal accent aan het geheel. Een centrale kern fungeert als spil tussen de verschillende ruimtes en niveaus en fungeert zo als herkenningspunt binnen het gebouw, daarrond zijn de kantoren gepositioneerd.

Zowel het kantoorcomplex als de opslagruimte zijn bijzonder energie-efficiënt. Zo behaalt het vlot de BEN-norm. Hiervoor werden moeite nog kosten gespaard. Beide gebouwen worden verwarmd en gekoeld door middel van een BEO-veld. Verder werd nagenoeg de volledige dakoppervlakte bedekt met zonnepanelen die bijna in de volledige energiebehoeften voorzien. Samen met een erg goede isolatie behaalt het gebouw een E-peil van E19. Vervolgens zijn er twee groendaken van meer dan 4.700 vierkante meter. Deze zorgen voor de nodige waterbuffering en waterrecuperatie. Tot slot doet ook de automatisch gestuurde ledverlichting haar duit in het zakje.


Duurzaamheid komt ook tot uiting in de materiaalkeuze en het ontwerp van het volume. De hoofdmaterialen zijn beton en glas en de atypische gevelbekleding bestaat uit keramiek, dit zijn materialen die niet verslijten en recycleerbaar zijn.
De kantoren, die zich bevinden bovenop de plint, zijn gestapeld in vier gelijke verdiepingen, omsloten door beglaasde gevels en voorzien van grote luifels. Op die wijze wordt een ruime natuurlijke lichttoetreding gecombineerd met een passieve bescherming tegen de zon.


Glazen wanden in het interieur zorgen ervoor dat tot diep in het gebouw aangenaam natuurlijk licht aanwezig is. Aangevuld met semitransparante gordijnen straalt het kantoorgebouw van het bouwbedrijf een zekere huiselijkheid uit.
Ook op het vlak van mobiliteit werd toekomstgericht gedacht, inclusief laadpunten voor elektrische wagens én fietsen.

Inplantingsplan.

Doorsnede.
Bron: Architecten Achtergael / Foto’s: Dennis De Smet




Geef een reactie